Bandeau Haute Maurienne Vanoise
Bandeau Haute Maurienne Vanoise
Réservez vos
AIGLON
AIGLON
AIGLON
AIGLON
AIGLON
AIGLON
AIGLON
AIGLON
AIGLON
AIGLON
AIGLON
Annonce professionnelle
Réf. AIGLON39
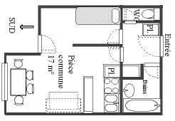
Type d'hébergement Studio
Surface 27 m²
Capacité 3 pers.

Descriptif

Idéalement situé en rez-de-chaussée de la Résidence Aiglon (niveau -1), ce studio bénéficie d’une terrasse exposée plein sud. Situé aux départs des pistes de la télécabine du Vieux Moulin et des sentiers de randonnée, pour profiter pleinement de votre séjour à la montagne été comme hiver.
Couchages
- Un canapé-lit gigogne dans le séjour (2 couchages)
- Un lit simple dans le coin montagne (séparé par un rideau)
Coin cuisine aménagé dans l’entrée avec mini-four, micro-ondes, réfrigérateur et plaques vitrocéramiques, ainsi qu’un coin salon équipé d’une télévision.
Sanitaires
- Une salle de bain avec baignoire et lavabo
- WC séparés
À savoir
- Possibilité de commander le linge de maison ainsi que le ménage fin de séjour
- Places de parking devant la résidence
- Casier à skis à l’entrée du bâtiment
- Cave privée pour le rangement ou le stockage
- Remise des clés directement par le propriétaire
- Animaux acceptés (avec supplément)
- Non accessible aux personnes à mobilité réduite

Services

Langues

  • Anglais
  • Allemand
  • Espagnol
  • Néerlandais
  • Italien

Moyens de paiement

  • Chèques vacances acceptésChèques vacances acceptés
  • Cartes bancaires acceptéesCartes bancaires acceptées

Accueil et Services

  • Animaux AcceptésAnimaux Acceptés

Confort

  • BalconBalcon

Equipements

  • Douche
  • TélévisionTélévision
  • Micro-onde
  • Lit double


Contact

Montagne Immobilier
Place de la Mairie 73480 BESSANS

Retour